3產品分類
3.1裝配型式
齒輪箱的裝配有四種型式,具體型式見圖1,用戶有特殊要求時由生產廠與用戶雙方協商決定。
3.2齒輪箱標記
齒輪箱代號包括齒輪箱的型號、中心距、公稱傳動比以及裝配型式。
a.齒輪箱型號
本標準規定齒輪箱的型號為GS,GS表示高速漸開線圓柱齒輪箱。
b.標記方法
c.標記示例
中心距為250mm,公稱傳動比為6.50,裝配型式為Ⅱ,其代號為:
GS 250-6.50-Ⅱ JB/T 7514
3.3基本參數
3.3.1齒輪模數應符合GB1357的規定,其范圍為1.5~10mm。
3.3.2GS系列齒輪箱的規格以中心距的數值大小來劃分,中心距應符合表1的規定。
表1GS系列齒輪箱中心距
|
160 |
200 |
224 |
250 |
280 |
315 |
355 |
400 |
|
450 |
500 |
530 |
560 |
600 |
630 |
670 |
- |
3.3.3GS系列齒輪箱公稱傳動比i=1.0~8.0,實際傳動比應滿足用戶要求,允許相對誤差在0.5%的范圍內。2000
3.3.4齒輪基本齒廓應符合GB1356規定,特殊情況下,允許設計者采用其他漸開線齒廓。
3.4結構尺寸
3.4.1GS160~GB400齒輪箱的結構尺寸應符合圖2極表2、表3的規定。
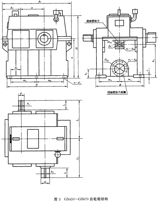
3.4.2GS450~GS670齒輪箱的結構尺寸應符合圖3及表4、表5的規定。
表2
|
規格 |
a |
A |
A1 |
A2 |
A3 |
R |
H |
m1 |
m2 |
c |
h |
h1 |
h2 |
d2 |
l2 |
|
160 |
160 |
430 |
570 |
180 |
76 |
345 |
635 |
355 |
145 |
32 |
380 |
100 |
290 |
60 |
105 |
|
200 |
200 |
535 |
675 |
200 |
95 |
380 |
675 |
455 |
160 |
38 |
380 |
100 |
290 |
70 |
105 |
|
224 |
224 |
600 |
735 |
210 |
108 |
420 |
815 |
520 |
180 |
38 |
510 |
120 |
410 |
85 |
130 |
|
250 |
250 |
670 |
830 |
240 |
114 |
480 |
840 |
570 |
200 |
38 |
510 |
120 |
410 |
95 |
130 |
|
280 |
280 |
740 |
895 |
255 |
127 |
510 |
865 |
635 |
215 |
38 |
510 |
135 |
410 |
110 |
165 |
|
315 |
315 |
815 |
970 |
265 |
140 |
560 |
970 |
710 |
240 |
38 |
585 |
135 |
470 |
110 |
165 |
|
355 |
355 |
900 |
1075 |
300 |
165 |
650 |
1040 |
800 |
280 |
45 |
585 |
150 |
470 |
130 |
200 |
|
400 |
400 |
1000 |
1180 |
320 |
184 |
685 |
1070 |
900 |
300 |
45 |
635 |
150 |
500 |
150 |
200 |
|
規格 |
b2 |
L2 |
進油管法蘭 |
回油管法蘭 |
|
質量/kg |
|
DN1 |
D1 |
D1′ |
n1-d01 |
DN2 |
D2 |
D2′ |
n2-d02 |
n-d3 |
|
160 |
18 |
370 |
25 |
100 |
75 |
4-11 |
80 |
190 |
150 |
4-18 |
4-24 |
300 |
|
200 |
20 |
410 |
25 |
100 |
75 |
4-11 |
80 |
190 |
150 |
4-18 |
4-26 |
500 |
|
224 |
22 |
455 |
32 |
120 |
90 |
4-14 |
100 |
210 |
170 |
4-18 |
4-32 |
600 |
|
250 |
25 |
480 |
32 |
120 |
90 |
4-14 |
100 |
210 |
170 |
4-18 |
4-35 |
900 |
|
280 |
28 |
540 |
40 |
130 |
100 |
4-14 |
125 |
240 |
200 |
8-18 |
4-42 |
1100 |
|
315 |
28 |
550 |
40 |
130 |
100 |
4-14 |
125 |
240 |
200 |
8-18 |
4-42 |
1300 |
|
355 |
32 |
630 |
65 |
160 |
130 |
4-14 |
150 |
265 |
225 |
8-18 |
4-42 |
1700 |
|
400 |
36 |
680 |
65 |
160 |
130 |
4-14 |
150 |
265 |
225 |
8-18 |
4-42 |
2300 |
注:①鍵和鍵槽尺寸GB1095規定。
②管法蘭的尺寸按GB9115中規定,公稱壓力PN≤0.6MPa,d0為螺栓孔直徑。
③D1、D2為與齒輪箱時、回油管的法蘭盤外徑。
表3
|
規格 |
i |
d1 |
l1 |
L1 |
b1 |
|
160 |
≥1.00~3.30
>3.30~3.70
>3.70~4.45
>4.45~5.30
>5.30~6.15
>6.15~7.00 |
60
50
45
40
32
25 |
105
82
82
82
58
42 |
370
352
352
352
328
307 |
18
14
14
12
10
8 |
|
200 |
≥1.00~3.55
>3.55~4.55
>4.55~5.20
>5.20~5.95
>5.95~6.82
>6.82~7.50 |
70
60
50
45
40
32 |
105
105
82
82
82
58 |
410
410
387
382
382
363 |
20
18
14
14
12
10 |
|
224 |
≥1.00~3.50
>3.50~4.20
>4.20~5.40
>5.40~6.15
>6.15~6.85
>6.85~8.00 |
85
70
60
50
45
40 |
130
105
105
82
82
82 |
450
430
430
407
407
407 |
22
20
18
14
14
12 |
|
250 |
≥1.00~3.50
>3.50~4.80
>4.80~6.10
>6.10~6.95
>6.95~7.85
>7.85~8.00 |
95
70
60
50
45
40 |
130
105
105
82
82
82 |
480
455
455
432
432
432 |
25
20
18
14
14
12 |
|
280 |
≥1.00~3.43
>3.43~4.00
>4.00~5.55
>5.55~6.75
>6.75~7.80
>7.80~8.00 |
110
95
70
60
50
45 |
165
130
105
105
82
82 |
540
505
480
480
457
452 |
28
25
20
18
14
14 |
|
315 |
≥1.00~3.10
>3.10~4.50
>4.50~5.45
>5.45~6.40
>6.40~7.75
>7.75~8.00 |
110
95
85
70
60
50 |
165
130
130
105
105
82 |
550
520
520
490
490
472 |
28
25
22
20
18
14 |
|
355 |
≥1.00~3.65
>3.65~4.45
>4.45~5.05
>5.05~5.90
>5.90~7.65
>7.65~8.00 |
130
110
95
85
70
60 |
200
165
130
130
105
105 |
630
590
555
555
530
530 |
32
28
25
22
20
18 |
|
400 |
≥1.00~3.38
>3.38~4.20
>4.20~5.15
>5.15~6.20
>6.20~8.00 |
140
130
110
95
70 |
200
200
165
130
105 |
675
675
635
600
575 |
36
32
28
25
20 |
注:鍵和鍵槽尺寸按GB1095規定。

表4
|
規格 |
a |
A |
A1 |
A2 |
A3 |
H |
m1 |
m2 |
h |
h1 |
h2 |
c |
i≥1.00~5.51 |
|
B |
m2 |
d2 |
l2 |
b2 |
L2 |
質量/kg |
|
450 |
450 |
1145 |
1358 |
370 |
210 |
1120 |
430 |
585 |
685 |
160 |
555 |
45 |
900 |
400 |
150 |
200 |
36 |
715 |
3500 |
|
500 |
500 |
1260 |
1472 |
395 |
220 |
1230 |
520 |
585 |
760 |
160 |
630 |
45 |
940 |
420 |
170 |
240 |
40 |
770 |
4400 |
|
530 |
530 |
1380 |
1560 |
415 |
250 |
1330 |
585 |
630 |
815 |
195 |
675 |
45 |
1020 |
460 |
180 |
240 |
45 |
815 |
5100 |
|
560 |
560 |
1465 |
1632 |
435 |
268 |
1389 |
629 |
664 |
845 |
195 |
705 |
45 |
1045 |
465 |
200 |
280 |
45 |
870 |
5700 |
|
600 |
600 |
1520 |
1794 |
490 |
280 |
1430 |
660 |
690 |
865 |
195 |
720 |
50 |
1070 |
475 |
200 |
280 |
45 |
870 |
6400 |
|
630 |
630 |
1640 |
1855 |
515 |
300 |
1510 |
730 |
745 |
900 |
195 |
760 |
50 |
1070 |
475 |
200 |
280 |
45 |
870 |
7100 |
|
670 |
670 |
1730 |
1950 |
520 |
320 |
1580 |
784 |
784 |
915 |
195 |
780 |
50 |
1070 |
475 |
200 |
280 |
45 |
870 |
7700 |
|
規格 |
i>5.51~7.00 |
時油管法蘭 |
因油管法蘭 |
地腳螺栓孔
n-d3 |
|
B |
m2 |
d2 |
l2 |
b2 |
L2 |
質量/kg |
DN1 |
D1 |
D1′ |
n1-d01 |
DN2 |
D2 |
D2′ |
n2-d02 |
|
450 |
775 |
335 |
130 |
200 |
32 |
650 |
3300 |
50 |
140 |
110 |
4-13 |
150 |
265 |
225 |
8-18 |
6-42 |
|
500 |
815 |
355 |
130 |
200 |
32 |
670 |
4100 |
50 |
140 |
110 |
4-13 |
150 |
265 |
225 |
8-18 |
6-42 |
|
530 |
875 |
390 |
150 |
200 |
36 |
710 |
5000 |
80 |
190 |
150 |
4-17 |
250 |
375 |
335 |
12-18 |
6-42 |
|
560 |
915 |
400 |
150 |
200 |
36 |
710 |
5700 |
80 |
190 |
150 |
4-17 |
250 |
375 |
335 |
12-18 |
6-42 |
|
600 |
940 |
415 |
150 |
200 |
36 |
725 |
6300 |
80 |
190 |
150 |
4-17 |
250 |
375 |
335 |
12-18 |
6-42 |
|
630 |
965 |
425 |
170 |
240 |
40 |
785 |
7000 |
80 |
190 |
150 |
4-17 |
250 |
375 |
335 |
12-18 |
6-48 |
|
670 |
990 |
435 |
170 |
240 |
40 |
785 |
7600 |
80 |
190 |
150 |
4-17 |
250 |
375 |
335 |
12-18 |
6-48 |
|
|
|
|
|
|
|
|
|
|
|
|
|
|
|
|
|
|
|
|
|
|
|
|
|
|
|
|
|
|
|
|
|
|
|
|
注:①鍵和鍵槽尺寸按GB1095規定,是否采用雙鍵由生產廠與用戶雙方商定。
②管法蘭尺寸按GB9115規定,PN≤0.6MPa,do為螺栓孔直徑。
③i≥7.00時,結構尺寸由生產廠與用戶雙方商定。
④D1、D2為與齒輪箱進、回油管的法蘭盤外徑。
表5
|
規格 |
i |
d1 |
l1 |
L1 |
b1 |
|
450 |
≥1.00~3.90
>3.90~4.85
>4.85~5.51
>5.51~5.70
>5.70~6.40
>6.40~7.00 |
150
125
110
110
95
85 |
200
165
165
165
130
130 |
715
680
680
615
580
580 |
36
32
28
28
25
22 |
|
500 |
≥1.00~3.90
>3.90~4.50
>4.50~5.51
>5.51~6.50
>6.50~7.00 |
170
150
125
110
95 |
240
200
165
165
130 |
770
735
700
635
600 |
40
3, 6
32
28
25 |
|
530 |
≥1.00~3.92
>3.92~5.00
>5.00~5.51
>5.51~6.15
>6.15~7.00 |
180
150
130
130
110 |
240
200
200
200
165 |
815
780
780
710
675 |
45
36
32
32
28 |
|
560 |
≥1.00~3.92
>3.92~5.00
>5.00~5.51
>5.51~6.15
>6.15~7.00 |
190
160
130
130
110 |
280
240
200
200
165 |
845
800
720
720
680 |
45
40
32
32
28 |
|
600 |
≥1.00~3.73
>3.73~4.75
>4.75~5.51
>5.51~6.55
>6.55~7.00 |
200
170
150
130
110 |
280
240
200
200
165 |
875
830
790
730
690 |
45
40
36
32
28 |
|
630 |
≥1.00~4.42
>4.42~4.92
>4.92~5.51
>5.51~6.33
>6.33~7.00 |
200
180
170
150
130 |
280
240
240
200
200 |
875
830
830
750
750 |
45
45
40
36
32 |
|
670 |
≥1.00~4.42
>4.42~4.92
>4.92~5.51
>5.51~6.33
>6.33~7.00 |
200
190
170
150
130 |
280
280
240
200
200 |
875
850
830
750
750 |
45
45
40
36
32 |
注:①鍵和鍵槽尺寸按GB1095規定。
②i≥7.00時,結構尺寸由生產廠與用戶雙方商定。